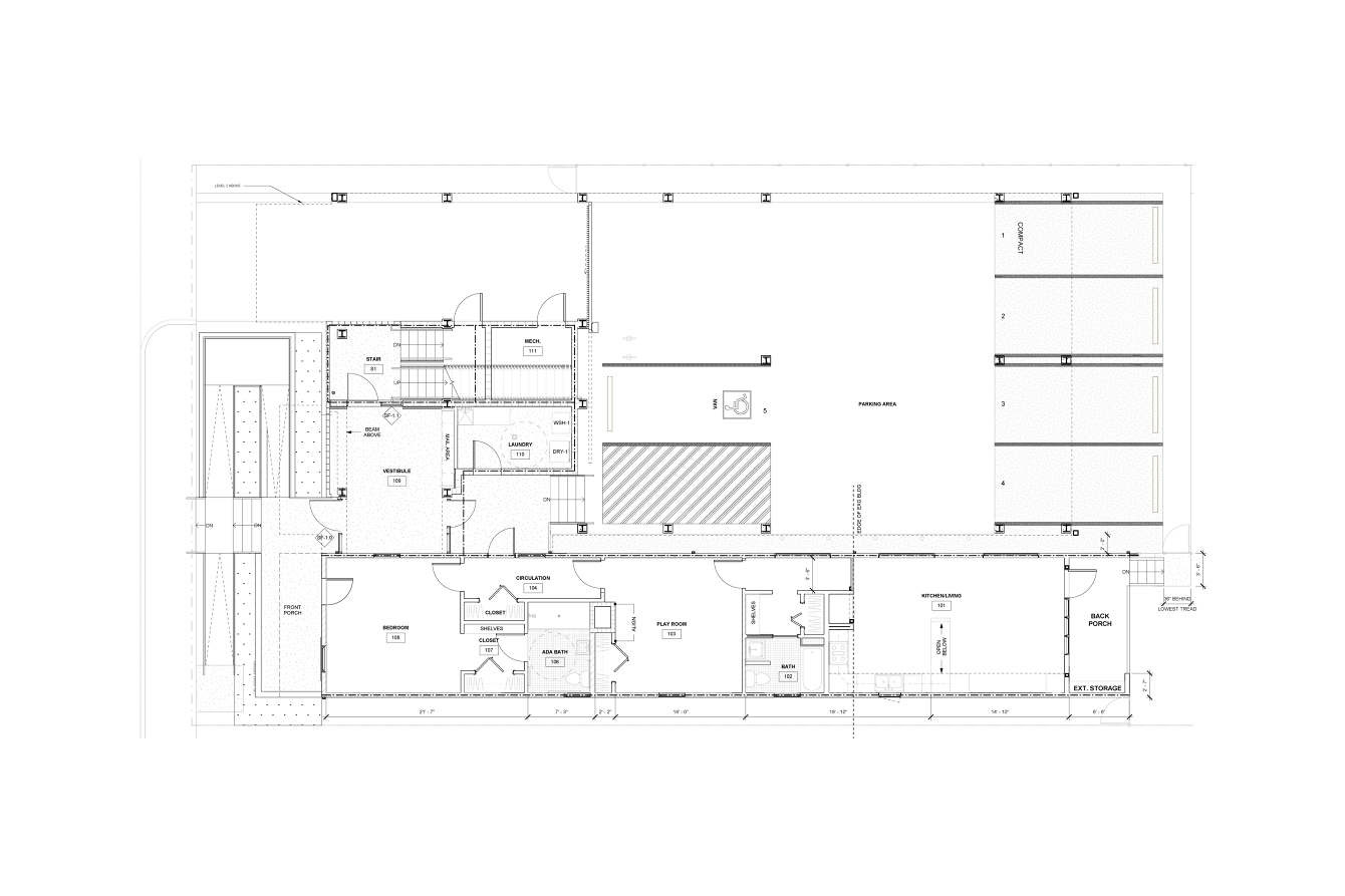
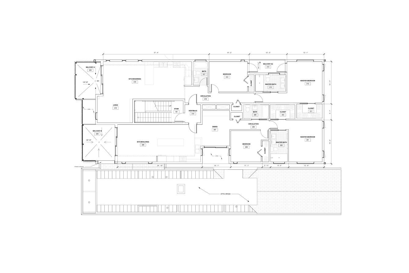
‘New Doc’ , a play on words referencing the previous owner, named Doc, is a multi-family project located on a prominent commercial corridor in New Orleans. A restrictive lot and an existing structure added to the complexity of creating an apartment building on a vibrant and up and coming block near Tulane University. A new modern warehouse like structure merges onto an existing building.  Balconies in the front take advantage of key views of the river beyond and the street below while at the same time providing privacy with a custom aluminum fin screen. The profile of the screen blends effortlessly with the vertical cladding of the main structure.
Design
Completion

You may also like

Back to Top