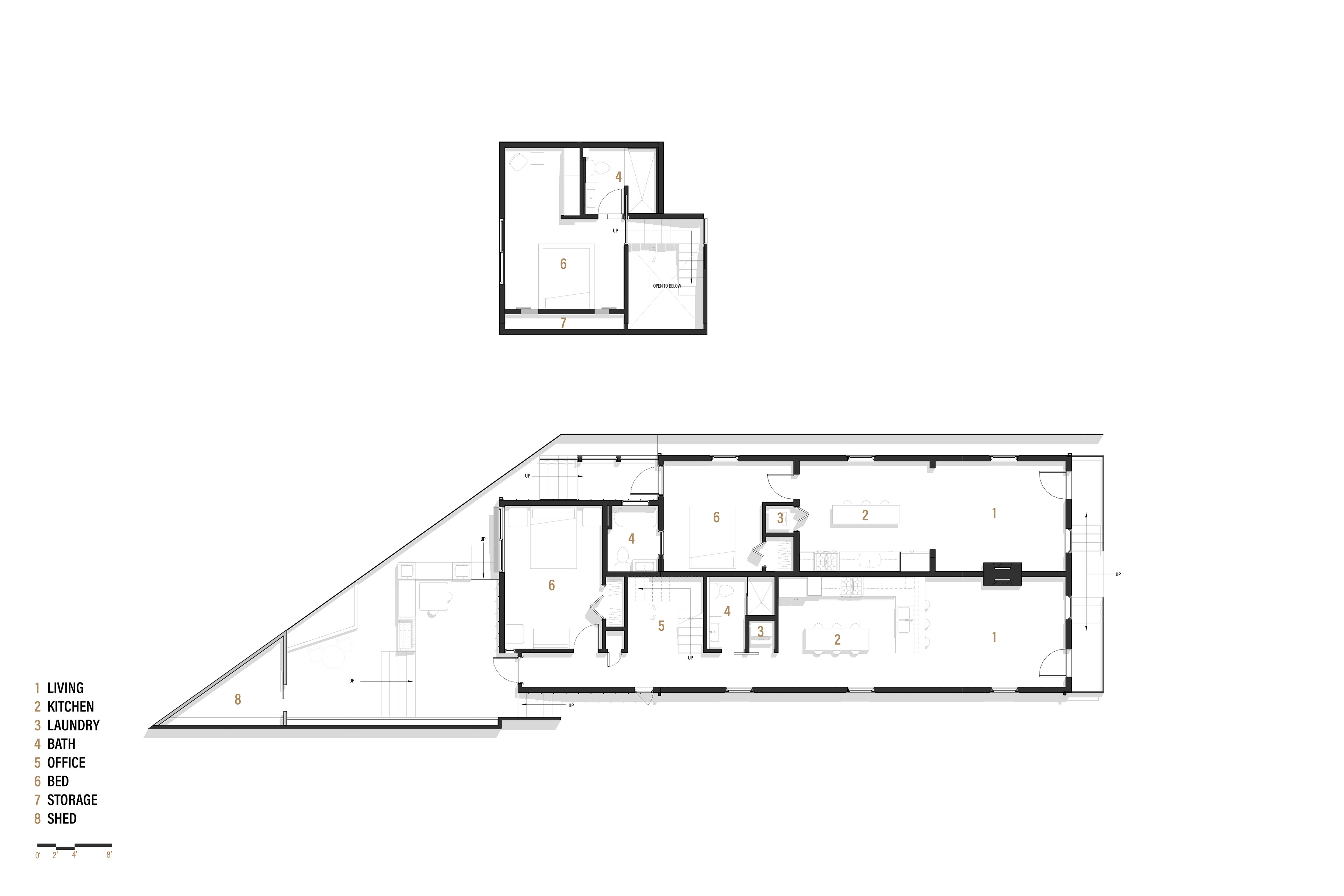
The intrigue of the large volume of interior space in these existing New Orleans Shotgun dwellings directed the concept of converting this space and flow into a more efficient and modern design. Challenges to this project included specific restrictions due to its unusual property boundary as well as budget limitations. However, this afforded me the full autonomy of the project design and execution. Seeing the extensive attic space in historic shotguns as advantageous, two levels were created optimizing every inch of height to produce a spacious yet intimate area for bedrooms. Locating the kitchen and more ‘public’ space towards the front afforded efficiency to the circulation of the residence. At the intersection of the more public and private area a new double height space was created to form a studio/office. Respectfully and fortuitously not only the foundation wall was salvaged but so were existing chimneys and wood throughout the demolition phase. Brick was repurposed for the construction of landscaping planters as well as a wood grill, old wood studs were salvaged and used as trim millwork, and the wood lathe that once held up the plaster walls became cladding for bedroom ceilings to create a sense of warmth and durability.
Design
Process
Completion

You may also like

Back to Top