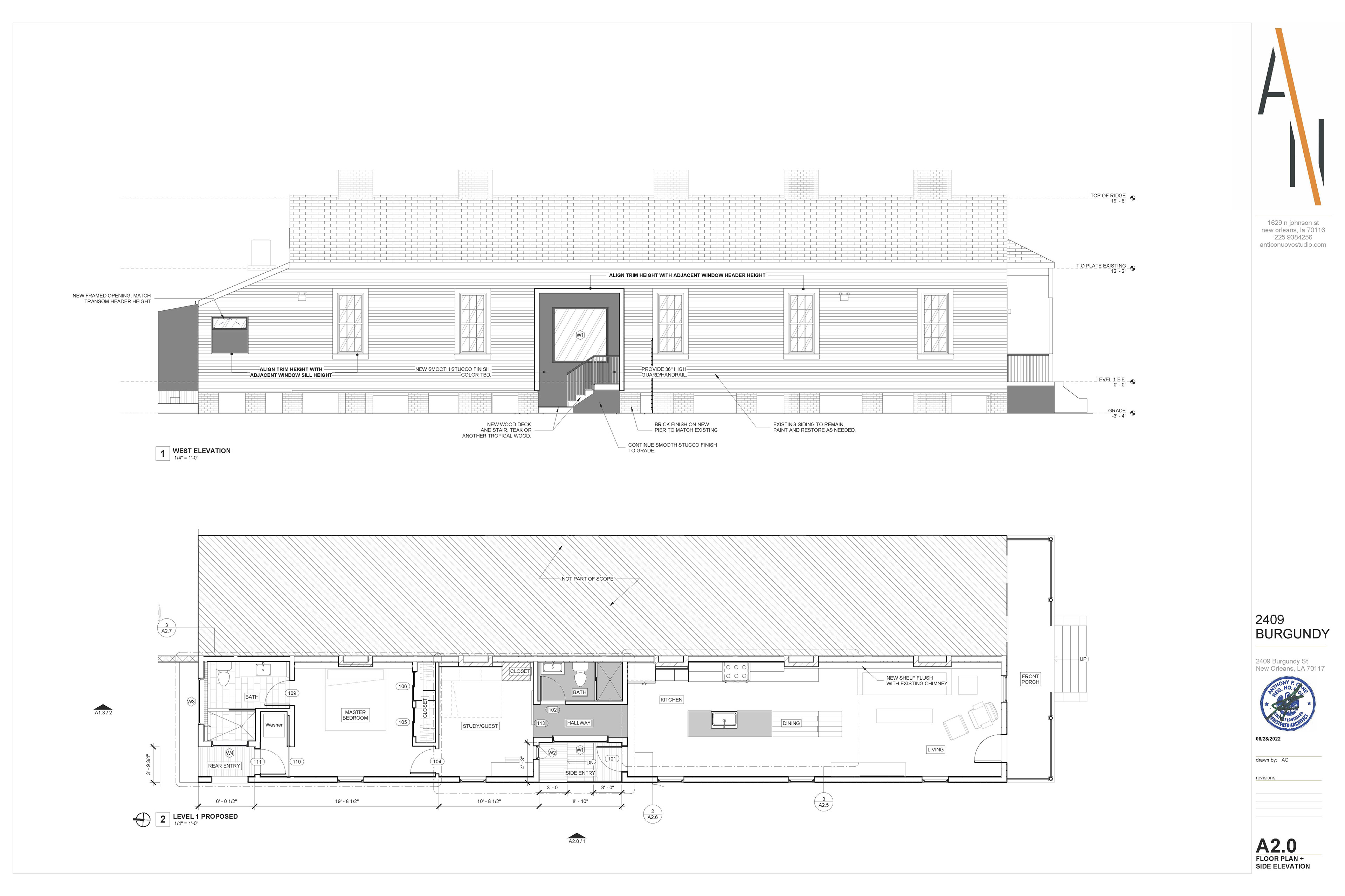
The Burgundy Renovation, was a carefuly crafted interior renovation of a single side of a New Orleans shotgun home. Rearranging the circulation by bringing the most public spaces towards the front and restructuring a side entrance provided the owners with more privacy while simultaneously creating useful space for social occasions. Bespoke millwork and furniture were designed and built for this space using mostly reclaimed materials from the demolition as well as other demolition sites in the area. This included wood lathe for headboards, reclaimed cypress barge boards for tables and doors, and old growth pine for shelving and storage. 
Process
Completion

You may also like

Back to Top